Shanghai Chuangjia Valve Co., Ltd
销售热线 :
13968966868


产品概述
1、供应介质为液、气的管路上作截流作用。
2、供各型净化设备及池子外部或管道上作排泥用。
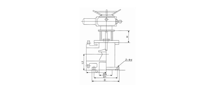
电动角式排泥阀工作原理及性能:
电动角式排泥阀由角式阀体、支架和电动头三大部分组成,由电动头带动阀板
开启或关闭,关闭后密封性能好,无渗漏等优点。
主要技术参数
| 压力等级 | 1.0Mpa、1.6Mpa |
| 电动头电压 | 220V、380V订货时注明 |
| 法兰连接标准 | GB/T17241.6 GB/T9113 |
| 试验标准 | GB/T 13927 API 598 |
主要零部件材料
| 零件名称 | 材料 |
| 阀体、支架 | 铸铁、球墨铸铁、WCB |
| 阀杆 | 不锈钢 |
| 阀板 | 球墨铸铁、热合橡胶、WCB热合橡胶 |
主要连接外形尺寸
| 公称通径 DN( mm) | 尺寸(mm) | 接管螺纹 G | 阀杆材质 | ||
| H | L1 | L2 | |||
| 80 | 480 | 135 | 125 | 1 /2" | 不锈钢 |
| 100 | 500 | 145 | 125 | 1/2" | 不锈钢 |
| 150 | 620 | 175 | 145 | 1/2" | 不锈钢 |
| 200 | 735 | 225 | 165 | 1/2" | 不锈钢 |
| 250 | 805 | 260 | 205 | 1/2" | 不锈钢 |
| 300 | 940 | 280 | 245 | 3/4" | 不锈钢 |
| 350 | 1100 | 305 | 270 | 3/4" | 不锈钢 |
| 400 | 1200 | 340 | 310 | 1" | 不锈钢 |