上海创嘉阀门有限公司

Shanghai Chuangjia Valve Co., Ltd

销售热线 :
13968966868

排泥阀当前位置:首页产品中心  
JM744X、JM644X快开排泥阀



  • 产品参数

产品概述

JM744X/JM644XB隔膜式液压、气动快开排泥阀,是一种由液压源或气动源执行机构的角型截断类阀门。通常成排安装在沉淀池底部外侧壁,用以排除池底沉淀的泥砂和污物。该阀由尼龙强化橡胶隔膜将阀门分为两个腔室,接通液压或气动源。采用电动或手动二位四通换向阀控制,实现快速排泥。该阀将隔膜代替活塞,无运动摩擦,更适用于泥浆等颗粒介质,大大提高了阀门的使用寿命。


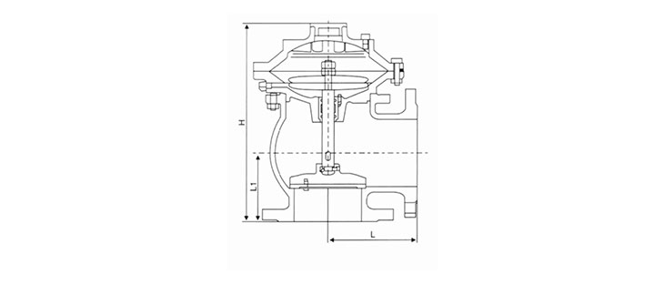
安装示意图 


主要技术参数


公称压力0.6Mpa、1.0Mpa
公称通径100-400mm
最新驱动压力0.15MPa
适用介质水、污水
驱动介质清水、气
适用温度0-80℃
法兰标准GB/T17241.6   GB/T 9113
试验标准GB/T 13927   API 598



主要零部件材料

零件名称阀体、阀盖膜片压板、阀盘阀杆膜片
材料铸铁、球铁、碳钢球铁、青铜不锈钢尼龙强化橡胶


主要连接外形尺寸

公称通径尺寸(mm)接管螺纹G阀杆材质
DN( mm)HL1L2
804801351251 /2"不锈钢
1005001451251/2"不锈钢
1506201751451/2"不锈钢
2007352251851/2"不锈钢
2508052602051/2"不锈钢
3009402802453/4"不锈钢
35011003052703/4"不锈钢
40012003403101"不锈钢

关于我们
新闻动态
联系我们
  • 地址:上海市金山区枫泾工业园
  • 电话:13968966868  13585922678
  • 网站:http://www.yjcyfm.com
  • 销售总部:上海市大宁路
  • 邮编:200070
  • 开户:工沪行中山北路支行
  • 帐号:1001265009300168224
上海创嘉阀门有限公司 版权所有  沪ICP备2023006928号